Building plot
0.48 acre / 1973 sqm
Detached house
4 bed, 2 recep, 4 bath
Double garage & driveway
Freehold
Edge of village setting
25/00343/FUL

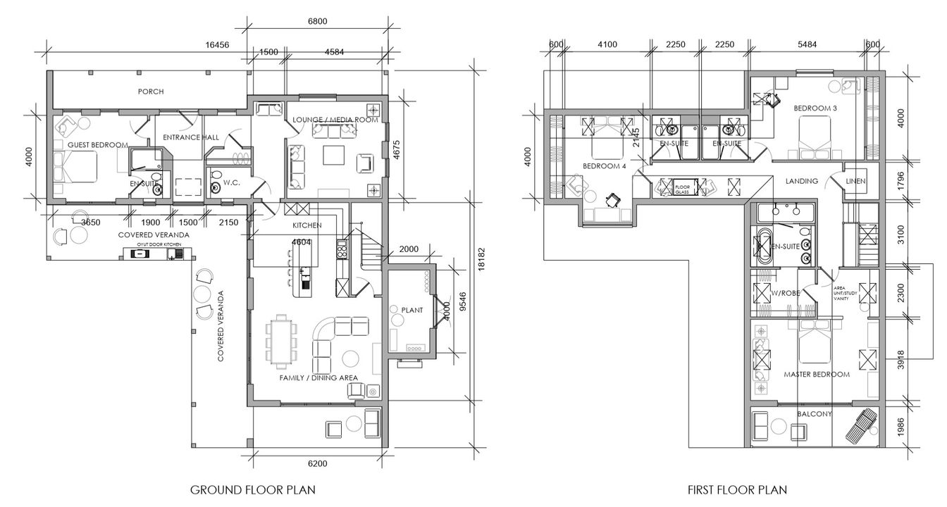
This approximately half-acre self-build plot adjacent to 31 Shepreth Road (Planning Reference: 25/00343/FUL presents a unique chance to craft your dream home in the picturesque village of Barrington. Subject to planning approval, the plot offers the potential to construct a spacious residence of around 265 square meters (2,863 square feet).


Barrington is renowned for its scenic beauty, community spirit, and proximity to Cambridge. The village green, local pub, and historic church add to its charm.


Self-Build Opportunity: This plot is designated for self-build, offering the freedom to design and construct a home tailored to your preferences and needs.


Planning Conditions:

Consented site with planning permission to self- build a contemporary detached home with accommodation of approximately of around 265 square meters (2,863 square feet). Planning reference: 25/00343/FUL.


There is a water main running through the plot, which will need to be diverted. The client obtained a quote from Cambridge Water in August 2025 for around £25,000. As with all quotes, the final cost could be subject to change, and we encourage any interested party to make their own enquiries. Quote available in office.


Electric connection is available.


Occupancy Requirement: Upon completion, the individual undertaking the self-build must intend to occupy the property as their principal residence for a minimum of three years.


Local Connection: In accordance with local planning policies, applicants with a local connection to the area may receive priority.


These conditions align with South Cambridgeshire District Council's commitment to supporting self and custom-build homes, ensuring that developments meet local housing needs and contribute positively to the community.


Next Steps:


Interested parties are advised to consult the detailed planning conditions and ensure compliance with all requirements. For more information on the planning application and associated conditions, please visit the South Cambridgeshire District Council's planning portal.


This is a rare opportunity to create a bespoke home in one of Cambridgeshire's most sought-after villages. With its substantial size and favorable location, this plot is ideal for those looking to embark on a self-build journey.


Please note: All prospective buyers should conduct their due diligence and consult with local planning authorities to ensure compliance with all planning conditions and regulations.


Barrington is renowned as one of the most beautiful villages south of Cambridge, with numerous handsome period buildings set around a large village green, purported to be the longest in England.


It is about 8 miles south west of Cambridge and is close to the A10, giving easy access to the M11. There are mainline railway stations available at Foxton and Shepreth which are 2 miles and 3 miles away respectively.