121 sqm / 1305 sqft
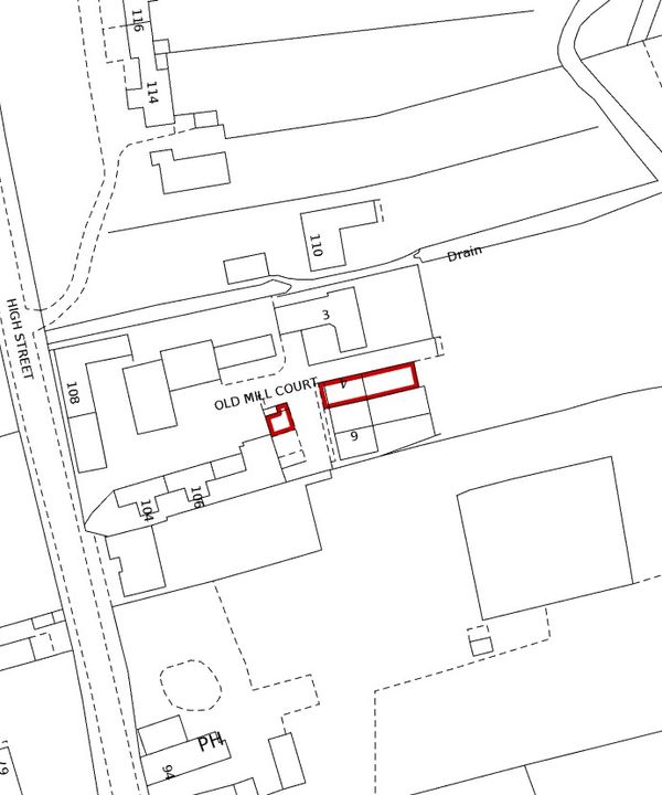
137 sqm / 0.033 acre
Barn style house
4 bed, 1 recep, 3.5 bath
Double car port
2014 - freehold
EPC - C / 77
Council tax band - D

Nestled in a charming barn-style mews, this charmind end-of-terrace house marries contemporary living with rural tranquility. The light and spacious interiors boast modern styling, providing a welcoming and comfortable atmosphere throughout. Featuring four well-appointed bedrooms, including three doubles, the property offers ample space for family living. Two of the bedrooms benefit from ensuite shower rooms, while a further family bathroom ensures convenience for all occupants. The ground floor encompasses a thoughtfully designed cloakroom for guests. Recently decorated, this chain-free home presents an ideal opportunity for those seeking a seamless relocation experience.


The exterior of the property complements its modern interiors. The home is part of an attractive mews, enriched by its distinctive barn-like architecture. A double carport, styled in harmony with the residence, provides ample parking space. The generously sized rear garden is a true delight, offering a serene retreat that feels delightfully rural, over looking an abundance of mature trees and lush greenery. It is an ideal space for outdoor entertaining or simply enjoying the natural surroundings in perfect peace.


Situated within a popular village, the home is conveniently located within walking distance to a variety of local amenities including shops and welcoming village pubs. The community atmosphere is enhanced by additional facilities which promote a friendly and engaged neighbourhood. For those needing to commute or seeking the wider offerings of nearby towns and cities, a train station is just a short distance away. This blend of peaceful country living with access to essential amenities and transport links makes the property an aspirational choice for discerning buyers.

Nestled in a charming barn-style mews, this charmind end-of-terrace house marries contemporary living with rural tranquility. The light and spacious interiors boast modern styling, providing a welcoming and comfortable atmosphere throughout. Featuring four well-appointed bedrooms, including three doubles, the property offers ample space for family living. Two of the bedrooms benefit from ensuite shower rooms, while a further family bathroom ensures convenience for all occupants. The ground floor encompasses a thoughtfully designed cloakroom for guests. Recently decorated, this chain-free home presents an ideal opportunity for those seeking a seamless relocation experience.


The exterior of the property complements its modern interiors. The home is part of an attractive mews, enriched by its distinctive barn-like architecture. A double carport, styled in harmony with the residence, provides ample parking space. The generously sized rear garden is a true delight, offering a serene retreat that feels delightfully rural, over looking an abundance of mature trees and lush greenery. It is an ideal space for outdoor entertaining or simply enjoying the natural surroundings in perfect peace.


Situated within a popular village, the home is conveniently located within walking distance to a variety of local amenities including shops and welcoming village pubs. The community atmosphere is enhanced by additional facilities which promote a friendly and engaged neighbourhood. For those needing to commute or seeking the wider offerings of nearby towns and cities, a train station is just a short distance away. This blend of peaceful country living with access to essential amenities and transport links makes the property an aspirational choice for discerning buyers.