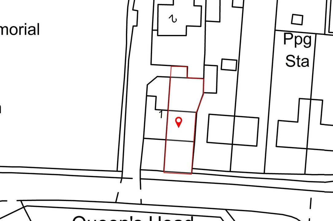
77 sqm / 835 sqft
177 sqm / 0.04
Semi detached cottage
2 bed, 1 recep, 1 bath
On road parking
1850's - freehold
EPC - E / 49
Council tax band - D

An attractive period cottage, set in the heart of the village, with gardens and vehicular access to the rear. The property is offered with no upward chain.


The property is characterful and bright and benefits from a modern kitchen/dining room, and the loft has also been converted into a useful additional living space.


Set behind a neat picket fence, the front garden is laid to lawn with a path leading to the front door. There is a small entrance hall with the staircase rising to the first floor, and the sitting room to the front of the building is generous with ample space for sofas and chairs. The kitchen dining room extends across the rear of the building and is fitted with a range of floor and wall mounted cabinets. There are double doors leading out to the garden, a built in cupboard that extends under the staircase, a double oven and hob with extractor over, and space for a dishwasher and fridge/freezer. The adjacent lean-to utility/store has doors giving access from front to back, and houses the washing machine. There is also a second sink and drainer.


On the first floor, the landing opens to two double bedrooms and a shower room fitted with a shower enclosure, w.c., and hand basin. A second staircase leads up to a useful loft room.

An attractive period cottage, set in the heart of the village, with gardens and vehicular access to the rear. The property is offered with no upward chain.


Newton is a lovely, smaller village about 3.5 miles south of Cambridge. The village is popular with those looking for a location that is close to the City and major road links (M11, J11, 3 miles), but far enough out to be more peaceful and unspoilt by recent development.


There are mainline railway stations at Whittlesford (4 miles, London Liverpool St c. 75 mins) and Royston (9 miles, London Kings Cross c. 50 minutes).


Within the village there is an excellent family-owned and run local pub, a lovely cafe/bakery/delicatessen, a recreation ground, cricket ground with an active local club, a Sports and Social club and various local clubs and societies. Harston and Newton Primary School (OFSTED 'Good') is in neighbouring Harston, about a mile away.