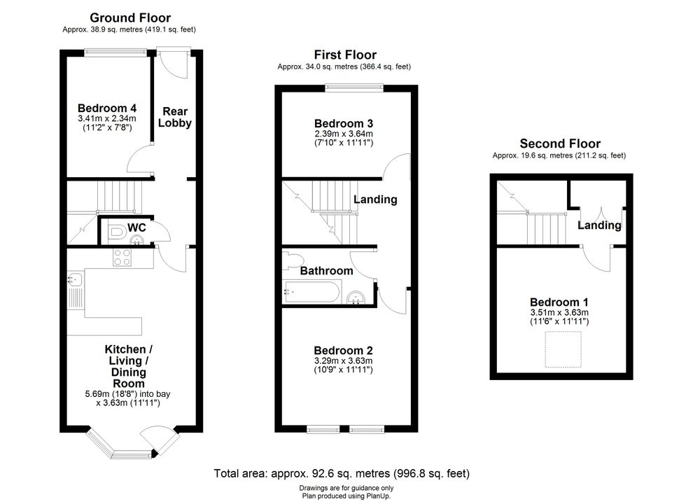
92 sqm / 996 sqft
109 sqm / 0.02 acre
Mid-terrace townhouse
4 bed, 1 recep, 1.5 bath
Allocated parking
1992 - Freehold
EPC - C / 74
Council tax band - D

A modern and well-presented 3/4 bedroom townhouse with private parking, positioned in a quiet location just off Mill Road, within easy reach of the railway station and offered with no onward chain.


This contemporary home is ideal for those looking to live in the vibrant Mill Road area, but who value the comfort, efficiency, and low-maintenance benefits of a modern property. It also offers strong rental potential thanks to its flexible and well-designed layout.


The ground floor features a bright open-plan living space with a bay window to the front. The kitchen is well equipped, offering generous storage, work surfaces, and an integrated oven, hob and extractor. Off the hallway, there is a cloakroom with WC, access to the rear garden, and to the second reception room or fourth bedroom, with views of the rear garden.


On the first floor are two comfortable double bedrooms and the family bathroom, which includes a shower over the bath. The top floor comprises a spacious double bedroom with a Velux window and a generous landing with built-in storage.

A modern townhouse situated in a quiet cul-de-sac within the heart of Romsey Town, one of Cambridge’s most desirable and established residential areas. Just moments from the vibrant amenities of Mill Road and within easy walking distance of the city’s main railway station, this well-positioned home offers the ideal blend of convenience and tranquillity.


Argyle Street is set within the heart of Romsey Town, one of Cambridge’s most vibrant and sought-after neighbourhoods. The Mill Road area is renowned for its cosmopolitan character, independent spirit, and diverse community, making it one of the most exciting parts of the city to live.


Mill Road itself is lined with a wide variety of independent shops, cafes, delis, restaurants, and bars, offering everything from artisan coffee to international cuisine. The surrounding streets also hide some of Cambridge’s most characterful and best-loved pubs.


This prime location is within walking or cycling distance of the historic city centre, the University, major shopping areas, and a range of green open spaces, including Parker’s Piece and the beautiful Botanic Gardens. Local amenities are excellent, with everything from schools and supermarkets to gyms, galleries and live music venues close at hand. Cambridge’s main railway station is just a short walk away, providing fast and direct links to London and beyond.