223 sqm / 2401 sqft
647 sqm / 0.16 acre
Detached house
5 bed, 3 recep, 2.5 bath
Garage & drive
1910 - freehold
EPC - B / 86
Council tax band - F

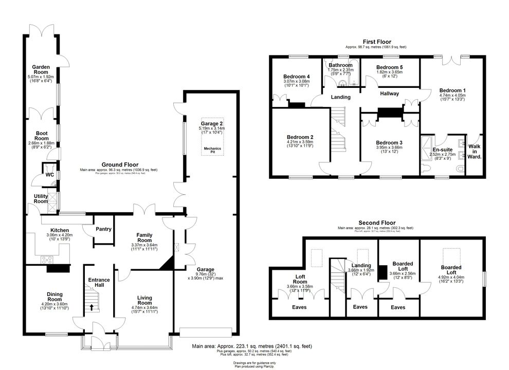
A handsome, very substantial, Edwardian five-bedroom family home offering an exceptional blend of period character and modern design, set within a generous 0.16-acre garden, with a tandem garage and off-road parking. The property provides 223 sqm (2401 sqft) of versatile, well-planned living accommodation and is offered with no upward chain.


Lyndale House retains charming period features throughout, enhanced by stylish interiors and a thoughtfully designed layout. High-quality upgrades include a contemporary kitchen and the installation of solar panels, which has resulted in an unexpectedly impressive B-rated EPC, ensuring both comfort and efficiency.


The ground floor is approached through a welcoming entrance hall that leads to three elegant reception rooms: a formal dining room, a spacious living room with period proportions, and a versatile family room at the heart of the home. The kitchen comprises bespoke cabinetry, granite work surfaces, and high-end appliances, including a Rangemaster induction cooker, integrated microwave, dishwasher, and a boiling water tap. The adjoining pantry is fitted with matching bespoke cabinetry, complete with cupboards and wine racks. To the rear of the house lies a boot room, a cloakroom, and a bright garden room that opens directly to the grounds, making this part of the house particularly well suited to family life. The ground floor also benefits from direct access to the tandem garage, which can accommodate three vehicles. The garage is fitted with a remote control door, a mechanics pit, and an EV charger, offering excellent space for storage or hobbies.


On the first floor, there are five bedrooms, including a superb principal suite with a Juliette balcony overlooking the garden, an en suite shower room, and a walk-in wardrobe. Two further generous double bedrooms and two additional bedrooms offer excellent flexibility for families, guests, or working from home. A family bathroom serves the remaining bedrooms.

A handsome, very substantial, Edwardian five-bedroom family home offering an exceptional blend of period character and modern design, set within a generous 0.16-acre garden, with a tandem garage and off-road parking. The property provides 223 sqm (2401 sqft) of versatile, well-planned accommodation and is offered with no upward chain.


Outside, the property sits within beautiful mature gardens, with the plot extending to approximately 0.16 of an acre. The space is both private and generous, offering excellent scope for further expansion, outdoor living, children’s play, or entertaining. There is a tree house in the willow tree, a garden fountain, a raised fish pond with Japanese Koi fish, and a useful storage shed.


Altogether, this is a substantial and characterful home that enjoys period detailing and modern energy-efficient features, making it a rare find for those seeking charm, space, and practicality in equal measure.


Agents notes:


1. The property benefits from an exceptionally large 10kW, 3-phase solar panel installation with 20 panels on the front plus 10 on the back. Additionally, there are 2 batteries totalling 11kWh. The excess energy is sold back to the grid, and this averages about £1000 PA, depending on the weather.


2. Many of the original sash windows, have been sympathetically refurbished with double glazed units.


3. The house is discreetly wired with internet sockets. There are multiple wifi points giving excellent wifi coverage across the whole house and garden. Smart home features include smart light switches and thermostat, and a smart security camera.


Pampisford is a small, attractive village with a church, two recreation grounds and a well-used village hall. It lies just off the A505 about 6 miles south of the city of Cambridge. It adjoins the larger village of Sawston, which has a fantastic range of facilities and well-regarded schooling for all age groups. The High Street, about one mile from Pampisford, has a good range of shops for daily needs.


Whittlesford Parkway main line station is a little over a mile away and the M11 Junction 10 about 2.5 miles away. Close by is also a good bus route into Cambridge (Citi 7) with buses every 20 minutes during the day and every hour in the evenings.


There are a number of major employment areas nearby including Granta Park at Abington (1.7 miles) the Genome Campus at Hinxton (3 miles) and Addenbrooke’s (7 miles). Sawston Business Park and the new Unity Campus are within easy walking distance.