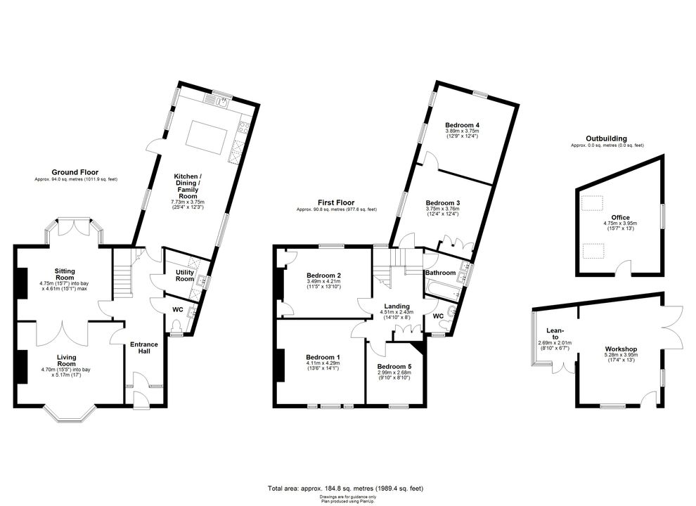
185 sqm / 1989 sqft
364 sqm / 0.09 acre
Terraced house
5 bed, 2 recep, 2.5 bath
Garage & on street parking
1860 - freehold
EPC - E / 52
Council tax band - G

This substantial bay-fronted Victorian home provides nearly 2,000 sqft of family accommodation arranged over two floors, blending traditional character with a bright, contemporary feel.


The reception hall sets the tone with polished floorboards, a turned staircase and excellent natural light. The two main reception rooms interlink via double doors, each with tall sash windows, high ceilings and period detailing.


At the rear, the expansive triple-aspect kitchen/dining/family room is modern in design. It has an extensive range of units, deep worktops, a central island with breakfast bar, and integrated appliances. Full-width glazing opens directly onto the garden, making it a particularly sociable and light-filled space.


A utility room and ground-floor cloakroom complete the ground floor.

A handsome Victorian home brimming with character, offering elegant rooms, high ceilings and a contemporary kitchen/family space that flows into broad walled gardens. With five bedrooms and versatile living, it’s perfectly placed for family life near the river and city.


The Garden and Outbuilding


The property occupies a prominent corner plot with walled frontage and established planting that provides privacy. The broad rear garden is mainly lawn with mature trees, a paved terrace and side access.


The two-storey brick outbuilding is a rare feature. It is currently arranged as an office, workshop, and lean-to, with vehicular access from George Street. Although it needs significant repair, it offers excellent scope for renovation.


Chesterton Road is a highly regarded residential area north of the river, moments from Midsummer Common, Jesus Green and Mitcham’s Corner. Local shops and cafés are on the doorstep, with the city centre just over a mile away. Cambridge North Station and the Science Park are within easy reach by cycle.


Primary schooling is at Milton Road, with secondary schooling at Chesterton Community College.