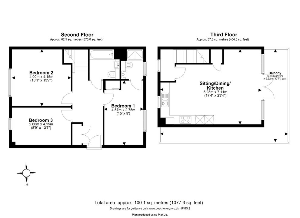
100 sqm / 1078 sqft
Leasehold
Duplex apartment
3 bed, 1 recep, 2 bath
Carport
2020
EPC - B / 82
Council tax band - E

This exceptional duplex apartment is immaculately presented and has been thoughtfully updated by the current owners. Built in 2020 by the renowned developers, Countryside, it is ideally located just a short walk from the Clay Farm Centre, which features a café, restaurant, library, children's play areas, doctors' surgery, dentist and a Sainsbury's. The area is also well served by frequent bus services, while cyclists can reach the city centre in under 10 minutes along the Guided Busway and Addenbrooke's Hospital and the Bio-Medical Campus in about 5 minutes.


The apartment block is located off the road and down a quiet Close, with access through a secure entrance, with stairs leading to the front door of the apartment, which occupies the second and third floors. Upon entering, you are welcomed into an inviting entrance hall that includes a useful storage cupboard. This hall leads to three spacious double bedrooms, all bathed in light from large windows. The primary bedroom includes built-in storage and an ensuite shower room, while the second and third bedrooms offer generous size and flexibility of use. The family bathroom, also on this floor, is equipped with a modern three-piece suite, featuring a shower over the bath, a glass shower screen, a heated towel rail, and floor-to-ceiling tiles.


The top floor offers a contemporary open-plan living area filled with natural light thanks to its dual aspect, creating an ideal space for entertaining family and friends. The kitchen is well-appointed with high-quality base and wall-mounted units, ample work surfaces, and integrated appliances, including a fridge/freezer, electric oven, microwave oven, washing machine, and dishwasher. Double doors lead out to the terrace, providing unobstructed views and an excellent area for relaxation and alfresco dining.


Additionally, the apartment benefits from secure cycle storage and allocated carport parking, with extra visitor parking available throughout the development.

An impeccably presented and beautifully designed duplex apartment featuring spacious, modern accommodation across two floors, complete with carport parking and a wraparound terrace that offers stunning, far-reaching views.


Trumpington is a thriving, fast-growing part of the city that still manages to retain its village identity and sense of community.


It is exceptionally well located for access into the Addenbrooke's campus, out to the M11 and into the city by car, bus, guided bus, one of a few purpose-built cycle routes, or even an enthusiastic walk. The city's mainline station can be easily reached along the guided busway cycleway without having to mix with car traffic at all. Cambridge South Station, due to open in 2026, will serve all lines to London and only be a 5 minute walk away.


The area has three primary schools and a brand new state-of-the-art secondary school built in 2016 with excellent sporting facilities and a public gym. Many of the city's finest private schools are within easy cycling distance.


There are also various restaurants, pubs, shops, a post office, barber, GP surgery, pharmacy, library and community centre. There is a major Waitrose supermarket and a Sainsbury's local.


Outdoors there is a country park between the apartment and Addenbrooke’s campus with allotments, walking paths and children’s play areas. There is a second nature reserve at Trumpington Meadows which links Trumpington through to Byron's Pool and Grantchester. Various bridleways and footpaths lead immediately out into the countryside towards Harston, Haslingfield, Barton and Grantchester.