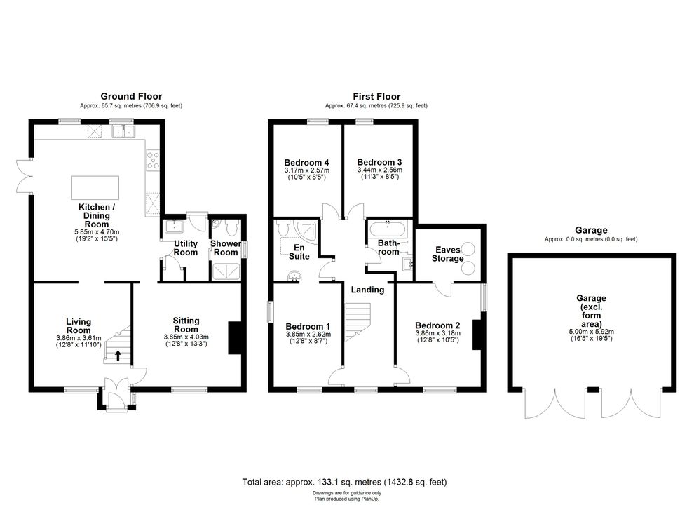
133 sqm / 1432 sqft
4790 sqm / 1.18 acre
Detached house
4 bed, 2 recpt, 3 bath
Double garage & parking
Victorian - freehold
EPC - D / 64
Council tax band - E

A handsome, double fronted Victorian home, with a generous garden, double garage, parking, and paddock. The property is set in an elevated position, within this picturesque and peaceful rural village, yet is close to the A11 and only a short drive from Cambridge, Newmarket, and Saffron Walden. No upward chain.


Green Farmhouse has been extended and improved to provide, generous family accommodation and has been extensively enhanced and insulated. It has also been fitted with an air source heat pump and underfloor heating has been installed to the ground floor with the exception of the utility and shower room.


The property is approached over a winding driveway that leads to a parking area and double garage and there is a path to the front door which opens to the entrance porch. The sitting room is bright with a large window providing lots of natural light and there is an attractive brick fireplace inset with a log burner. The adjacent reception room offers a second living area with a window overlooking the front garden and from here the staircase leads up to the first floor. To the rear of the house there is a modern kitchen/dining room with lovely views over the garden and paddock beyond. The kitchen is fitted with a range of cabinets set above and below the working surfaces, there is a butler sink, and space for a dishwasher, a large range cooker, and a fridge freezer. On the ground floor there is also a shower room fitted with a shower, w.c., and hand basin and a utility room with a second butler sink, appliance space, and a door out to the garden.


On the first floor is a galleried landing with a window providing light over the staircase and landing. There are four double bedrooms, two larger doubles overlook the front, with the main bedroom having an en-suite fitted with a shower enclosure, w.c. and hand basin and the second bedroom has a large walk-in cupboard and is dual aspect. Two smaller doubles to the rear enjoy views over the paddocks. On the first floor there is also a family bathroom fitted with a bath, w.c. and hand basin, and a roof light floods the room with natural light.

A handsome, double fronted Victorian home with a generous garden, double garage, parking, and paddock. The property is set in an elevated position, within this picturesque and peaceful rural village, yet it is only a short drive from Cambridge, Newmarket, and Saffron Walden, and is close to the A11.


Agents note: The property has planning permission for the construction of a 4.4m x 6.4m two story side extension, which would provide a master bedroom and further lounge.


Material Information report can be viewed by clicking on the brochure link.


Weston Colville is a pretty, semi-rural village, located within beautiful rolling countryside, yet is only 15 miles south east of Cambridge or 8 miles from Newmarket.


The village has a church, cricket ground, and village hall, with a wider range of services available in Linton, which is about 6 miles away. Primary schooling is available in Balsham with secondary provision at Linton Village College, a school pickup bus provides services to both schools from the village. Linton VC also has sporting and leisure facilities that are available to the public, outside of school hours.


For the commuter access to the A11 is about 5 miles away and from here there are easy links to the M11 and the wider road network.